福島郡山 現在、原状回復工事中です。スナック・バー居抜き物件。詳細はお気軽にお問い合わせ下さい
第三増子ビル2階 202号室
この物件に関するお問い合わせはこちらから
0120-948-510
物件ID HX-0022
お電話での問い合わせ時に物件IDをお伝えください。
※気になる物件リストから、まとめて問い合わせや内見依頼ができます。
リストへの追加は最大20件まで可能です。
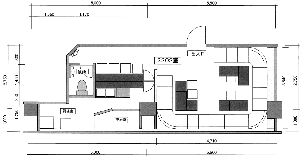
図面などと現況が異なる場合は現況を優先します。
物件ID
HX-0022
この物件について、問い合わせや内見依頼
電話連絡
0120-948-510
受付担当に物件IDをお伝え下さい。
当サイトを通じて、この物件で店舗を開業しカラオケ設置される場合は、弊社指定業者とのカラオケ契約が条件となります。
物件情報
| コメント | 福島郡山 現在、原状回復工事中です。スナック・バー居抜き物件。詳細はお気軽にお問い合わせ下さい |
|---|---|
| 物件住所 | 福島県郡山市駅前2丁目 |
| 最寄駅 |
JR磐越西線(郡山~会津若松) 「郡山」駅 徒歩5分
|
|---|---|
| 坪数 | 11坪 ( 36.36㎡ ) |
| 所在階 | 2階 |
| 物件ID | HX-0022 |
|---|---|
| 建物 | |
| 築年月 |
| 賃料(税込) | 209,000円 (うち消費税19,000円) |
|---|---|
| 管理費(税込) | |
| 共益費(税込) | 22,000円 |
| 保証金 | 4ヶ月 |
|---|---|
| 礼金(税込) | 1ヶ月 |
| 更新料 | |
| 賃料坪単価(税込) | 19,000円/坪 |
| 賃料総額(税込) | 231,000円 |
|---|---|
| 償却(税込) | |
| 造作代金 | |
| 契約期間 |
| 設備状況等備考 | 家庭用冷蔵庫 現状回付工事中の為別途問い合わせ下さい |
|---|
| 初期費用(概算) |
|---|
|
約141万円
※この金額は、物件詳細に表示されている情報を基に算出した概算です。参考値としてご使用の上、契約時の正確な金額に関しては、別途お問い合わせ下さい。尚、この金額には不動産会社に支払う仲介手数料も含まれています。 |
地図
(物件周辺の地図を表示しており、赤色のピンは物件の正しい位置を指していません。)物件ID
HX-0022
この物件について、問い合わせや内見依頼
電話連絡
0120-948-510
受付担当に物件IDをお伝え下さい。


