有楽街エリア/JR東海道本線「浜松駅」徒歩10分!バーおすすめスケルトン貸店舗!!
WAVE BLDG.(旧 浜松松竹ビル)3階E号室
この物件に関するお問い合わせはこちらから
0120-948-510
物件ID TX-1246
お電話での問い合わせ時に物件IDをお伝えください。
※気になる物件リストから、まとめて問い合わせや内見依頼ができます。
リストへの追加は最大20件まで可能です。
図面などと現況が異なる場合は現況を優先します。
物件ID
TX-1246
この物件について、問い合わせや内見依頼
電話連絡
0120-948-510
受付担当に物件IDをお伝え下さい。
当サイトを通じて、この物件で店舗を開業しカラオケ設置される場合は、弊社指定業者とのカラオケ契約が条件となります。
物件情報
| コメント | 有楽街エリア/JR東海道本線「浜松駅」徒歩10分!バーおすすめスケルトン貸店舗!! |
|---|---|
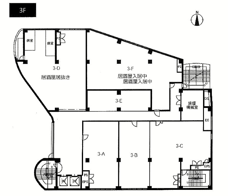
| 物件住所 | 静岡県浜松市中央区肴町 |
| 最寄駅 |
JR東海道本線(熱海~浜松) 「浜松」駅 徒歩10分
|
|---|---|
| 坪数 | 13.67坪 ( 45.19㎡ ) |
| 所在階 | 3階 |
| 物件ID | TX-1246 |
|---|---|
| 建物 |
地上7階 地下1階 エレベータ有り (2基) |
| 築年月 | 1985年 |
| 賃料(税込) | 165,407円 (うち消費税15,037円) |
|---|---|
| 管理費(税込) | |
| 共益費(税込) |
| 敷金 | 6ヶ月 |
|---|---|
| 礼金(税込) | |
| 更新料 | |
| 賃料坪単価(税込) | 12,100円/坪 |
| 賃料総額(税込) | 165,407円 |
|---|---|
| 償却(税込) | 50% |
| 造作代金 | |
| 契約期間 |
| 設備状況等備考 | 集合ポスト 敷地内ゴミステーション(B1F)あり |
|---|
| 初期費用(概算) |
|---|
|
約123万円
※この金額は、物件詳細に表示されている情報を基に算出した概算です。参考値としてご使用の上、契約時の正確な金額に関しては、別途お問い合わせ下さい。尚、この金額には不動産会社に支払う仲介手数料も含まれています。 |
地図
(物件周辺の地図を表示しており、赤色のピンは物件の正しい位置を指していません。)物件ID
TX-1246
この物件について、問い合わせや内見依頼
電話連絡
0120-948-510
受付担当に物件IDをお伝え下さい。



