名古屋/あおなみ線「中島駅」徒歩8分!1階路面!バー・スナックおすすめ居抜き店舗!!
正徳コーポ・1階 南
この物件に関するお問い合わせはこちらから
0120-948-510
物件ID TP-1627
お電話での問い合わせ時に物件IDをお伝えください。
※気になる物件リストから、まとめて問い合わせや内見依頼ができます。
リストへの追加は最大20件まで可能です。
図面などと現況が異なる場合は現況を優先します。
物件ID
TP-1627
この物件について、問い合わせや内見依頼
電話連絡
0120-948-510
受付担当に物件IDをお伝え下さい。
当サイトを通じて、この物件で店舗を開業しカラオケ設置される場合は、弊社指定業者とのカラオケ契約が条件となります。
物件情報
| コメント | 名古屋/あおなみ線「中島駅」徒歩8分!1階路面!バー・スナックおすすめ居抜き店舗!! |
|---|---|
| 物件住所 | 愛知県名古屋市港区正徳町5丁目 |
| 最寄駅 |
あおなみ線 「中島」駅 徒歩8分
|
|---|---|
| 坪数 | 7坪 ( 23.14㎡ ) |
| 所在階 | 1階 |
| 物件ID | TP-1627 |
|---|---|
| 建物 | 地上3階 |
| 築年月 | 1998年 |
| 賃料(税込) | 93,500円 (うち消費税8,500円) |
|---|---|
| 管理費(税込) | |
| 共益費(税込) |
| 保証金 | 300,000円 |
|---|---|
| 礼金(税込) | |
| 更新料 | |
| 賃料坪単価(税込) | 13,357円/坪 |
| 賃料総額(税込) | 93,500円 |
|---|---|
| 償却(税込) | 100% |
| 造作代金 | |
| 契約期間 |
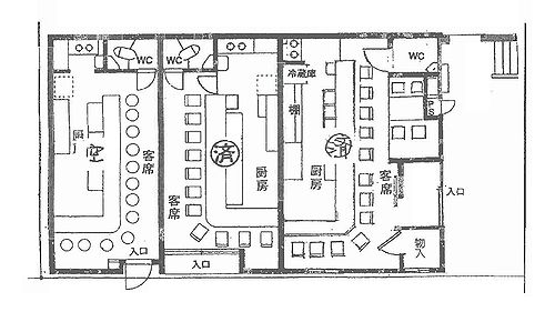
| 設備状況等備考 | ・現況:居酒屋居抜き ・引渡可能時期;相談 ・賃貸保証、火災保険:加入要 |
|---|
| 初期費用(概算) |
|---|
|
約49万円
※この金額は、物件詳細に表示されている情報を基に算出した概算です。参考値としてご使用の上、契約時の正確な金額に関しては、別途お問い合わせ下さい。尚、この金額には不動産会社に支払う仲介手数料も含まれています。 |
地図
(物件周辺の地図を表示しており、赤色のピンは物件の正しい位置を指していません。)物件ID
TP-1627
この物件について、問い合わせや内見依頼
電話連絡
0120-948-510
受付担当に物件IDをお伝え下さい。



