金沢/北陸鉄道「野町駅」徒歩16分!1階路面~3階住居付!スナック・バーおすすめ貸店舗!!
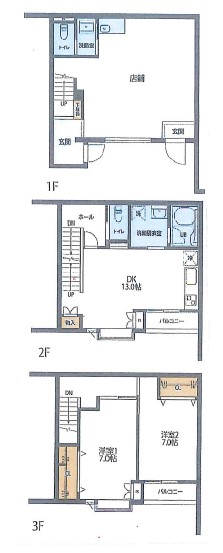
パオス増泉・1階~3階一括貸し(1階店舗39.45㎡ 2階住居35.09㎡ 3階住居35.09㎡)
・フルリノベーション済
この物件に関するお問い合わせはこちらから
0120-948-510
物件ID TX-1882
お電話での問い合わせ時に物件IDをお伝えください。
※気になる物件リストから、まとめて問い合わせや内見依頼ができます。
リストへの追加は最大20件まで可能です。
図面などと現況が異なる場合は現況を優先します。
物件ID
TX-1882
この物件について、問い合わせや内見依頼
電話連絡
0120-948-510
受付担当に物件IDをお伝え下さい。
当サイトを通じて、この物件で店舗を開業しカラオケ設置される場合は、弊社指定業者とのカラオケ契約が条件となります。
物件情報
| コメント | 金沢/北陸鉄道「野町駅」徒歩16分!1階路面~3階住居付!スナック・バーおすすめ貸店舗!! |
|---|---|
| 物件住所 | 石川県金沢市増泉2丁目 |
| 最寄駅 |
北陸鉄道石川線 「野町」駅 徒歩16分
北陸鉄道バス「中村町」停留所より徒歩2分
|
|---|---|
| 坪数 | 33.16坪 ( 109.63㎡ ) |
| 所在階 | 1階~3階(坪数は合計) |
| 物件ID | TX-1882 |
|---|---|
| 建物 |
地上3階 (鉄筋コンクリート) エレベータなし |
| 築年月 | 1979年7月 |
| 賃料(税込) | 140,000円 (うち消費税12,727円) |
|---|---|
| 管理費(税込) | |
| 共益費(税込) |
| 敷金 | 2ヶ月 |
|---|---|
| 礼金(税込) | 1ヶ月 |
| 更新料 | |
| 賃料坪単価(税込) | 4,222円/坪 |
| 賃料総額(税込) | 140,000円 |
|---|---|
| 償却(税込) | |
| 造作代金 | |
| 契約期間 | 2年 |
| 設備状況等備考 | ・賃貸保証:加入必須 ・火災保険:加入必須 ・更新事務手数料あり:20,000円(税別) ・解約予告:6ヶ月前 ・鍵交換費は退去時実費精算 |
|---|
| 初期費用(概算) |
|---|
|
約67万円
※この金額は、物件詳細に表示されている情報を基に算出した概算です。参考値としてご使用の上、契約時の正確な金額に関しては、別途お問い合わせ下さい。尚、この金額には不動産会社に支払う仲介手数料も含まれています。 |
地図
(物件周辺の地図を表示しており、赤色のピンは物件の正しい位置を指していません。)物件ID
TX-1882
この物件について、問い合わせや内見依頼
電話連絡
0120-948-510
受付担当に物件IDをお伝え下さい。
最寄駅やエリアが同じ物件
read more
- 35.37坪
- 38.83 万円




