銀座7丁目!並木通り沿い資生堂本社前!クラブおすすめスケルトン貸店舗!!
ソワレ・ド・銀座弥生ビルこの物件に関するお問い合わせはこちらから
0120-948-510
物件ID SP-6815
お電話での問い合わせ時に物件IDをお伝えください。
※気になる物件リストから、まとめて問い合わせや内見依頼ができます。
リストへの追加は最大20件まで可能です。
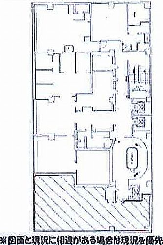
図面などと現況が異なる場合は現況を優先します。
物件ID
SP-6815
この物件について、問い合わせや内見依頼
電話連絡
0120-948-510
受付担当に物件IDをお伝え下さい。
当サイトを通じて、この物件で店舗を開業しカラオケ設置される場合は、弊社指定業者とのカラオケ契約が条件となります。
物件情報
| コメント | 銀座7丁目!並木通り沿い資生堂本社前!クラブおすすめスケルトン貸店舗!! |
|---|---|
| 物件住所 | 東京都中央区銀座7丁目 |
| 最寄駅 |
東京メトロ銀座線 「銀座」駅 徒歩4分
JR山手線 「新橋」駅 徒歩7分
|
|---|---|
| 坪数 | 35.2坪 ( 116.36㎡ ) |
| 所在階 | 3階 |
| 物件ID | SP-6815 |
|---|---|
| 建物 |
地上9階 地下1階 エレベータ有り (3基) |
| 築年月 | 1974年 |
| 賃料(税込) | 応相談 |
|---|---|
| 管理費(税込) | |
| 共益費(税込) |
| 保証金 | |
|---|---|
| 礼金(税込) | 2ヶ月 |
| 再契約料 | |
| 賃料坪単価(税込) |
| 賃料総額(税込) | 応相談 |
|---|---|
| 償却(税込) | 2ヶ月 |
| 造作代金 | |
| 契約期間 | 定期借家 7年 |
| 看板維持費 | 5,000 円/月(税別) |
|---|---|
| 町内会費 | 200 円/月(税別) |
| 設備状況等備考 | ・賃貸保証、火災保険加入要(指定会社あり) ・公正証書締結必須 ・看板、消防関連工事:指定会社あり ・原状回復義務あり(スケルトン) |
| 初期費用(概算) |
|---|
|
約1万円
※この金額は、物件詳細に表示されている情報を基に算出した概算です。参考値としてご使用の上、契約時の正確な金額に関しては、別途お問い合わせ下さい。尚、この金額には不動産会社に支払う仲介手数料も含まれています。 |
地図
(物件周辺の地図を表示しており、赤色のピンは物件の正しい位置を指していません。)物件ID
SP-6815
この物件について、問い合わせや内見依頼
電話連絡
0120-948-510
受付担当に物件IDをお伝え下さい。





