
申し訳ありません。
この物件は成約いたしました。
この物件は成約いたしました。
JR中央線「中野駅」北口徒歩4分!中野通り沿い!スナック・バーおすすめ貸店舗!!
ビジネスハイツ中野・24h利用可
・準専用階段あり
この物件に関するお問い合わせはこちらから
0120-948-510
物件ID SP-7691
お電話での問い合わせ時に物件IDをお伝えください。
図面などと現況が異なる場合は現況を優先します。

物件情報
コメント | JR中央線「中野駅」北口徒歩4分!中野通り沿い!スナック・バーおすすめ貸店舗!! |
---|---|
物件住所 | 東京都中野区中野5丁目 |
最寄駅 |
JR中央線(快速) 「中野」駅 徒歩4分
|
---|---|
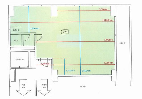
坪数 | 18.08坪 ( 59.76㎡ ) |
所在階 | 2階 |
物件ID | SP-7691 |
---|---|
建物 | 地上10階 地下1階 |
築年月 | 1972年 |
地図
(物件周辺の地図を表示しており、赤色のピンは物件の正しい位置を指していません。)最寄駅やエリアが同じ物件

- 7.29坪
- 28.50 万円