JR根岸線「関内駅」徒歩5分!福富町東通り沿い!スナック・バー内装リース店舗!!
鳥伊勢ビル・2階 202号室
この物件に関するお問い合わせはこちらから
0120-948-510
物件ID SP-7919
お電話での問い合わせ時に物件IDをお伝えください。
※気になる物件リストから、まとめて問い合わせや内見依頼ができます。
リストへの追加は最大20件まで可能です。
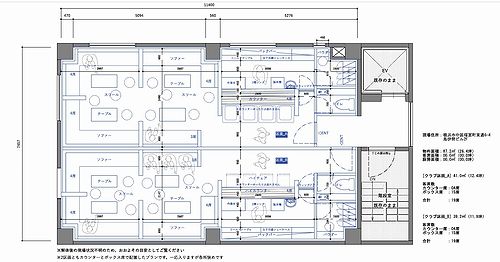
図面などと現況が異なる場合は現況を優先します。
物件ID
SP-7919
この物件について、問い合わせや内見依頼
電話連絡
0120-948-510
受付担当に物件IDをお伝え下さい。
当サイトを通じて、この物件で店舗を開業しカラオケ設置される場合は、弊社指定業者とのカラオケ契約が条件となります。
物件情報
| コメント | JR根岸線「関内駅」徒歩5分!福富町東通り沿い!スナック・バー内装リース店舗!! |
|---|---|
| 物件住所 | 神奈川県横浜市中区福富町東通 |
| 最寄駅 |
JR根岸線 「関内」駅 徒歩5分
|
|---|---|
| 坪数 | 11.85坪 ( 39.2㎡ ) |
| 所在階 | 2階 |
| 物件ID | SP-7919 |
|---|---|
| 建物 |
地上6階 地下1階 (鉄骨) エレベータ有り |
| 築年月 |
| 賃料(税込) | 235,620円 (うち消費税21,420円) |
|---|---|
| 管理費(税込) | |
| 共益費(税込) | 賃料に含む |
| 保証金 | 2,000,000円 |
|---|---|
| 礼金(税込) | 1ヶ月 |
| 更新料 | 新賃料 1ヶ月 |
| 賃料坪単価(税込) | 19,884円/坪 |
| 賃料総額(税込) | 235,620円 |
|---|---|
| 償却(税込) | 満期解約50%、1年未満80%、2年未満70%、3年未満60% |
| 造作代金 | |
| 契約期間 | 3年 |
| ごみ収集料 | 5,000 円/月(税込) |
|---|---|
| 設備状況等備考 | ・引渡可能時期:2026年3月予定 ・賃貸保証:加入必須(初回100%) ・保険:加入要(3年) ・看板掲載料なし |
| 初期費用(概算) |
|---|
|
約271万円
※この金額は、物件詳細に表示されている情報を基に算出した概算です。参考値としてご使用の上、契約時の正確な金額に関しては、別途お問い合わせ下さい。尚、この金額には不動産会社に支払う仲介手数料も含まれています。 |
地図
(物件周辺の地図を表示しており、赤色のピンは物件の正しい位置を指していません。)物件ID
SP-7919
この物件について、問い合わせや内見依頼
電話連絡
0120-948-510
受付担当に物件IDをお伝え下さい。





