半蔵門線「渋谷駅」徒歩3分!バー・クラブおすすめ居抜き店舗!公園通り沿い2022年築浅!!
パークウェイテラス・4階ワンフロア1テナント
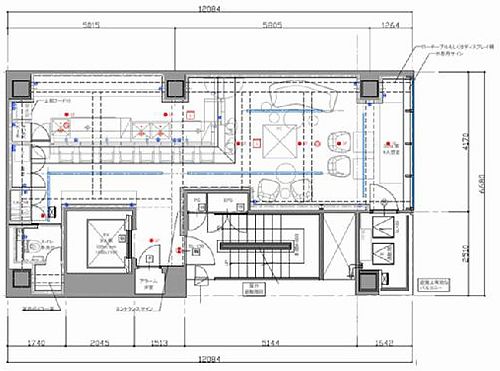
・天井高:3,050mm
この物件に関するお問い合わせはこちらから
0120-948-510
物件ID SP-7985
お電話での問い合わせ時に物件IDをお伝えください。
※気になる物件リストから、まとめて問い合わせや内見依頼ができます。
リストへの追加は最大20件まで可能です。
図面などと現況が異なる場合は現況を優先します。
物件ID
SP-7985
この物件について、問い合わせや内見依頼
電話連絡
0120-948-510
受付担当に物件IDをお伝え下さい。
当サイトを通じて、この物件で店舗を開業しカラオケ設置される場合は、弊社指定業者とのカラオケ契約が条件となります。
物件情報
| コメント | 半蔵門線「渋谷駅」徒歩3分!バー・クラブおすすめ居抜き店舗!公園通り沿い2022年築浅!! |
|---|---|
| 物件住所 | 東京都渋谷区神南1丁目 |
| 最寄駅 |
東京メトロ半蔵門線 「渋谷」駅 徒歩3分
JR山手線 「渋谷」駅 徒歩5分
東急東横線 「渋谷」駅 徒歩3分
|
|---|---|
| 坪数 | 17.42坪 ( 57.59㎡ ) |
| 所在階 | 4階 |
| 物件ID | SP-7985 |
|---|---|
| 建物 |
地上11階 地下1階 (鉄骨鉄筋コンクリート) エレベータ有り |
| 築年月 | 2022年3月 |
| 賃料(税込) | 700,000円 (うち消費税63,636円) |
|---|---|
| 管理費(税込) | |
| 共益費(税込) | 賃料に含む |
| 保証金 | 6ヶ月 |
|---|---|
| 礼金(税込) | なし |
| 再契約料 | 新賃料 1ヶ月 |
| 賃料坪単価(税込) | 40,184円/坪 |
| 賃料総額(税込) | 700,000円 |
|---|---|
| 償却(税込) | 2ヶ月 |
| 造作代金 | 5,500,000円 |
| 契約期間 | 定期借家 3年 |
| 設備状況等備考 | ・引渡可能時期:相談 ・賃貸保証:加入要 ・家財保険:加入要 |
|---|
| 初期費用(概算) |
|---|
|
約1072万円
※この金額は、物件詳細に表示されている情報を基に算出した概算です。参考値としてご使用の上、契約時の正確な金額に関しては、別途お問い合わせ下さい。尚、この金額には不動産会社に支払う仲介手数料も含まれています。 |
地図
(物件周辺の地図を表示しており、赤色のピンは物件の正しい位置を指していません。)物件ID
SP-7985
この物件について、問い合わせや内見依頼
電話連絡
0120-948-510
受付担当に物件IDをお伝え下さい。


