銀座6丁目!スナック・バーおすすめ貸店舗!西銀座通り(外堀通り)沿い好立地!!
ThePLACE銀座・ザ・プレイス銀座
この物件に関するお問い合わせはこちらから
0120-948-510
物件ID SP-7998
お電話での問い合わせ時に物件IDをお伝えください。
※気になる物件リストから、まとめて問い合わせや内見依頼ができます。
リストへの追加は最大20件まで可能です。
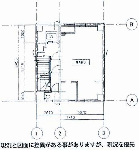
図面などと現況が異なる場合は現況を優先します。
物件ID
SP-7998
この物件について、問い合わせや内見依頼
電話連絡
0120-948-510
受付担当に物件IDをお伝え下さい。
当サイトを通じて、この物件で店舗を開業しカラオケ設置される場合は、弊社指定業者とのカラオケ契約が条件となります。
物件情報
| コメント | 銀座6丁目!スナック・バーおすすめ貸店舗!西銀座通り(外堀通り)沿い好立地!! |
|---|---|
| 物件住所 | 東京都中央区銀座6丁目 |
| 最寄駅 |
東京メトロ銀座線 「銀座」駅 徒歩3分
東京メトロ日比谷線 「銀座」駅 徒歩3分
東京メトロ丸ノ内線 「銀座」駅 徒歩3分
|
|---|---|
| 坪数 | 16.3坪 ( 53.9㎡ ) |
| 所在階 | 5階 |
| 物件ID | SP-7998 |
|---|---|
| 建物 |
地上10階 地下1階 (鉄骨鉄筋コンクリート) エレベータ有り |
| 築年月 | 1962年1月 |
| 賃料(税込) | 627,550円 (うち消費税57,050円) |
|---|---|
| 管理費(税込) | |
| 共益費(税込) | なし |
| 敷金 | 応相談 |
|---|---|
| 礼金(税込) | なし |
| 再契約料 | 新賃料 1ヶ月 |
| 賃料坪単価(税込) | 38,500円/坪 |
| 賃料総額(税込) | 627,550円 |
|---|---|
| 償却(税込) | |
| 造作代金 | |
| 契約期間 | 定期借家 |
| 設備状況等備考 | ・現況:ネイルサロン居抜き ・引渡可能時期:2026年5月上旬 ・契約期間:相談 ・水道料金:固定10,000円(税別) |
|---|
| 初期費用(概算) |
|---|
|
約126万円
※この金額は、物件詳細に表示されている情報を基に算出した概算です。参考値としてご使用の上、契約時の正確な金額に関しては、別途お問い合わせ下さい。尚、この金額には不動産会社に支払う仲介手数料も含まれています。 |
地図
(物件周辺の地図を表示しており、赤色のピンは物件の正しい位置を指していません。)物件ID
SP-7998
この物件について、問い合わせや内見依頼
電話連絡
0120-948-510
受付担当に物件IDをお伝え下さい。




