大田区「蒲田駅」西口徒歩2分!スナック・バーおすすめ1階路面スケルトン貸店舗!駅近好立地!!
弘城ビル・1階ワンフロア1テナント
・24h営業可
この物件に関するお問い合わせはこちらから
0120-948-510
物件ID SP-8165
お電話での問い合わせ時に物件IDをお伝えください。
※気になる物件リストから、まとめて問い合わせや内見依頼ができます。
リストへの追加は最大20件まで可能です。
図面などと現況が異なる場合は現況を優先します。
物件ID
SP-8165
この物件について、問い合わせや内見依頼
電話連絡
0120-948-510
受付担当に物件IDをお伝え下さい。
当サイトを通じて、この物件で店舗を開業しカラオケ設置される場合は、弊社指定業者とのカラオケ契約が条件となります。
物件情報
| コメント | 大田区「蒲田駅」西口徒歩2分!スナック・バーおすすめ1階路面スケルトン貸店舗!駅近好立地!! |
|---|---|
| 物件住所 | 東京都大田区西蒲田7丁目 |
| 最寄駅 |
JR京浜東北線 「蒲田」駅 徒歩2分
東急池上線 「蒲田」駅 徒歩2分
|
|---|---|
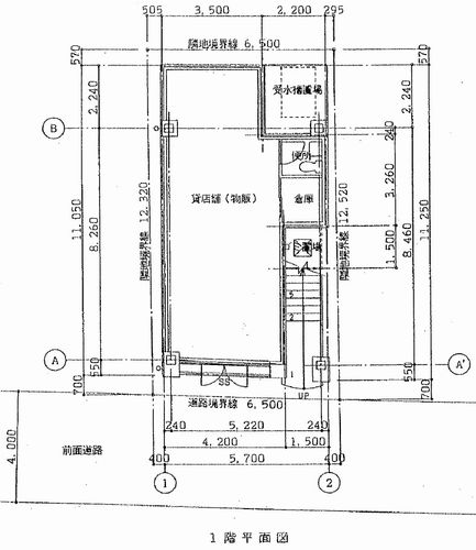
| 坪数 | 15.02坪 ( 49.66㎡ ) |
| 所在階 | 1階 |
| 物件ID | SP-8165 |
|---|---|
| 建物 | 地上4階 (鉄骨) |
| 築年月 | 1995年9月 |
| 賃料(税込) | 797,500円 (うち消費税72,500円) |
|---|---|
| 管理費(税込) | |
| 共益費(税込) | 27,500円 |
| 保証金 | 応相談 |
|---|---|
| 礼金(税込) | 1ヶ月 |
| 再契約料 | 新賃料 1ヶ月 |
| 賃料坪単価(税込) | 53,096円/坪 |
| 賃料総額(税込) | 825,000円 |
|---|---|
| 償却(税込) | 2ヶ月 |
| 造作代金 | |
| 契約期間 | 定期借家 5年 |
| 設備状況等備考 | ・引渡可能時期:相談 ・解約予告:6ヶ月前 ・再契約:年数相談 |
|---|
| 初期費用(概算) |
|---|
|
約242万円
※この金額は、物件詳細に表示されている情報を基に算出した概算です。参考値としてご使用の上、契約時の正確な金額に関しては、別途お問い合わせ下さい。尚、この金額には不動産会社に支払う仲介手数料も含まれています。 |
地図
(物件周辺の地図を表示しており、赤色のピンは物件の正しい位置を指していません。)物件ID
SP-8165
この物件について、問い合わせや内見依頼
電話連絡
0120-948-510
受付担当に物件IDをお伝え下さい。




