JR明石です!スナック・バー向き居抜き店舗♪天カセエアコン・トイレ入れ替え済です!
5A
現状有姿
この物件に関するお問い合わせはこちらから
0120-948-510
物件ID KP-4246
お電話での問い合わせ時に物件IDをお伝えください。
※気になる物件リストから、まとめて問い合わせや内見依頼ができます。
リストへの追加は最大20件まで可能です。
図面などと現況が異なる場合は現況を優先します。
物件ID
KP-4246
この物件について、問い合わせや内見依頼
電話連絡
0120-948-510
受付担当に物件IDをお伝え下さい。
当サイトを通じて、この物件で店舗を開業しカラオケ設置される場合は、弊社指定業者とのカラオケ契約が条件となります。
物件情報
| コメント | JR明石です!スナック・バー向き居抜き店舗♪天カセエアコン・トイレ入れ替え済です! |
|---|---|
| 物件住所 | 兵庫県明石市相生町2丁目 |
| 最寄駅 |
JR神戸線(神戸~姫路) 「明石」駅 徒歩9分
|
|---|---|
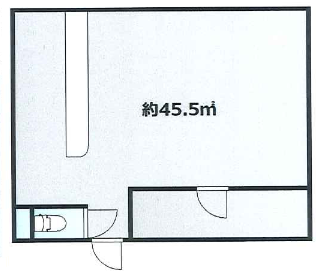
| 坪数 | 13.7坪 ( 45.28㎡ ) |
| 所在階 | 5階 |
| 物件ID | KP-4246 |
|---|---|
| 建物 | 地上7階 |
| 築年月 | 1986年 |
| 賃料(税込) | 154,000円 (うち消費税14,000円) |
|---|---|
| 管理費(税込) | |
| 共益費(税込) |
| 保証金 | |
|---|---|
| 礼金(税込) | |
| 更新料 | |
| 賃料坪単価(税込) | 11,241円/坪 |
| 賃料総額(税込) | 154,000円 |
|---|---|
| 償却(税込) | |
| 造作代金 | |
| 契約期間 | 2年 |
| 水道代 | 9,000 円/2ヶ月(税別) |
|---|---|
| 電気基本料 | 9,950 円/月(税別) |
| 設備状況等備考 | 指定火災保険加入要 指定家賃保証加入要 |
地図
(物件周辺の地図を表示しており、赤色のピンは物件の正しい位置を指していません。)物件ID
KP-4246
この物件について、問い合わせや内見依頼
電話連絡
0120-948-510
受付担当に物件IDをお伝え下さい。



