兎我野町「東梅田駅」徒歩7分!バー・スナックおすすめ居抜き店舗!裁判所西筋線至近レジャービル!!
とがの町ビル・4階 403号室
この物件に関するお問い合わせはこちらから
0120-948-510
物件ID KP-4850
お電話での問い合わせ時に物件IDをお伝えください。
※気になる物件リストから、まとめて問い合わせや内見依頼ができます。
リストへの追加は最大20件まで可能です。
図面などと現況が異なる場合は現況を優先します。
物件ID
KP-4850
この物件について、問い合わせや内見依頼
電話連絡
0120-948-510
受付担当に物件IDをお伝え下さい。
当サイトを通じて、この物件で店舗を開業しカラオケ設置される場合は、弊社指定業者とのカラオケ契約が条件となります。
物件情報
| コメント | 兎我野町「東梅田駅」徒歩7分!バー・スナックおすすめ居抜き店舗!裁判所西筋線至近レジャービル!! |
|---|---|
| 物件住所 | 大阪府大阪市北区兎我野町 |
| 最寄駅 |
大阪メトロ谷町線 「東梅田」駅 徒歩7分
|
|---|---|
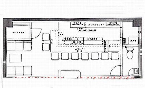
| 坪数 | 8.78坪 ( 29.05㎡ ) |
| 所在階 | 4階 |
| 物件ID | KP-4850 |
|---|---|
| 建物 | 地上5階 地下1階 (鉄筋コンクリート) |
| 築年月 |
| 賃料(税込) | 206,800円 (うち消費税18,800円) |
|---|---|
| 管理費(税込) | |
| 共益費(税込) | 22,000円 |
| 敷金 | なし |
|---|---|
| 礼金(税込) | 1,320,000円 |
| 更新料 | |
| 賃料坪単価(税込) | 23,554円/坪 |
| 賃料総額(税込) | 228,800円 |
|---|---|
| 償却(税込) | |
| 造作代金 | |
| 契約期間 |
| 看板代 | 1,000 円/月(税別) |
|---|---|
| 電気基本料金 | 7,000 円/月(税別) |
| 塵芥処理量 | 7,200 円/月(税別) |
| 設備状況等備考 | ・現況:入居中(2026年3月末空き予定) ・賃貸保証:加入要(初回総賃料100%+変動費) ・火災保険:加入要 ・カラオケ業者:指定あり |
地図
(物件周辺の地図を表示しており、赤色のピンは物件の正しい位置を指していません。)物件ID
KP-4850
この物件について、問い合わせや内見依頼
電話連絡
0120-948-510
受付担当に物件IDをお伝え下さい。





