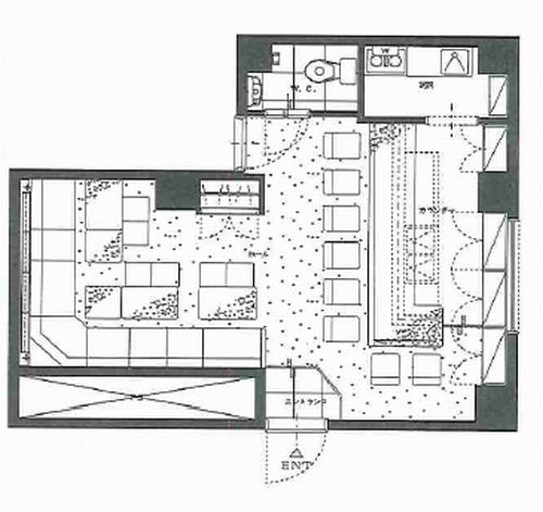
「神戸三宮駅」徒歩3分!バー・ラウンジ内装リース店舗!!
羽根田ビル・3階 302号室
この物件に関するお問い合わせはこちらから
0120-948-510
物件ID KP-4860
お電話での問い合わせ時に物件IDをお伝えください。
※気になる物件リストから、まとめて問い合わせや内見依頼ができます。
リストへの追加は最大20件まで可能です。
図面などと現況が異なる場合は現況を優先します。
物件ID
KP-4860
この物件について、問い合わせや内見依頼
電話連絡
0120-948-510
受付担当に物件IDをお伝え下さい。
当サイトを通じて、この物件で店舗を開業しカラオケ設置される場合は、弊社指定業者とのカラオケ契約が条件となります。
物件情報
| コメント | 「神戸三宮駅」徒歩3分!バー・ラウンジ内装リース店舗!! |
|---|---|
| 物件住所 | 兵庫県神戸市中央区加納町4丁目 |
| 最寄駅 |
阪急神戸本線 「神戸三宮」駅 徒歩3分
|
|---|---|
| 坪数 | 12.5坪 ( 41.32㎡ ) |
| 所在階 | 3階 |
| 物件ID | KP-4860 |
|---|---|
| 建物 |
地上7階 (鉄骨) エレベータ有り |
| 築年月 |
| 賃料(税込) | 212,300円 (うち消費税19,300円) |
|---|---|
| 管理費(税込) | 29,700円 |
| 共益費(税込) |
| 保証金 | 250,000円 |
|---|---|
| 礼金(税込) | 330,000円 |
| 更新料 | |
| 賃料坪単価(税込) | 16,984円/坪 |
| 賃料総額(税込) | 242,000円 |
|---|---|
| 償却(税込) | |
| 造作代金 | |
| 契約期間 | 3年 |
| 看板代 | 52,000 円(税別) |
|---|---|
| 鍵交換費 | 25,000 円(税別) |
| 設備状況等備考 | ・火災保険:加入要 |
地図
(物件周辺の地図を表示しており、赤色のピンは物件の正しい位置を指していません。)物件ID
KP-4860
この物件について、問い合わせや内見依頼
電話連絡
0120-948-510
受付担当に物件IDをお伝え下さい。




